Bifamiliare in vendita

Ronco Scrivia, Via Milite Ignoto
€ 240.000
8 locali 8 locali
220 Mq 220 Mq
3 bagni 3 bagni

Bifamiliare in vendita

Ronco Scrivia, Via Milite Ignoto

Descrizione annuncio

RONCO SCRIVIA - Via Milite Ignoto

Siamo in centro paese a pochi passi da tutti i servizi essenziali, scuole, negozi e mezzi di trasporto pubblico, ivi compresa la stazione ferroviaria.

La casa è INDIPENDENTE BI-FAMILIARE con Ingresso carrabile, tramite cancello privato automatizzato elettricamente, avente giardino privato e terreno tutto recintato.

Dotata di impianto di allarme la casa risulta in perfetto stato di manutenzione per quanto riguarda facciata e tetto, disposta su tre livelli complessivi, piano terra con box e taverna, due unità abitative poste al primo e secondo piano.

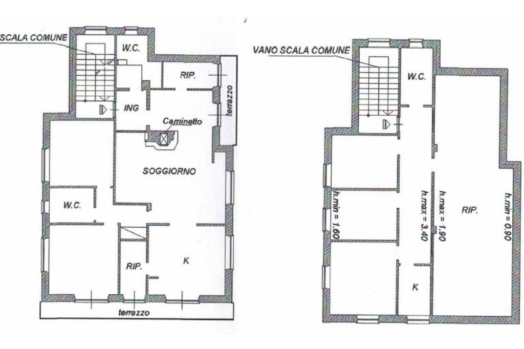
Un portoncino, al piano terra, dà accesso ad un corridoio ed a un vano scale comune, dove due porte consentono l' accesso pedonale ai due grandi locali box ed alla caratteristica taverna.

Entrambi i box sono accessibili dall'esterno tramite porte basculanti; il primo è dotato di grande spazio ad uso dispensa e di un bagno, con finestra e box doccia.

Il secondo è provvisto di un ulteriore locale sfruttabile come cabina armadio o come dispensa dotata di finestra. Sul retro è posta la Taverna, dotata di forno a legna in muratura, lavello e top in marmo, ideale per impastare e preparare pizze e/o pane. Presente inoltre una stufa a pellet.

La scala interna conduce alla prima parte abitativa, totalmente ristrutturata e così disposta: all' ingresso ci ritroviamo nel grande salone, dotato di piccolo balcone e tavolo da pranzo. Al centro è presente un camino in muratura, dotato di bocchette che, raggiungendo tutti gli ambienti della casa, permettono di alternare o di sostituire il riscaldamento a metano.

Possibilità di funzionamento in combinata (al raggiungimento della temperatura indicata tramite calderina, consente il mantenimento della stessa solo tramite camino).

Vicino al salone troviamo un' ampia cucina abitabile ed altresì dotata di grande isola centrale. In cucina è presente una capiente dispensa e da ambo gli ambienti è possibile accedere alla grande balconata principale.

Tra il soggiorno e la cucina è presente un ampio disimpegno, eventualmente arredabile, il quale dà accesso alla zona notte composta da due grandi camere matrimoniali ed al primo bagno dotato di finestra e box doccia. Anche da una delle camere si può accedere alla balconata principale.

Allo stesso piano, nella zona giorno, sono presenti inoltre un secondo bagno dotato finestra e vasca ad idromassaggio ed un locale adibito a lavanderia con accesso diretto al balcone più piccolo.

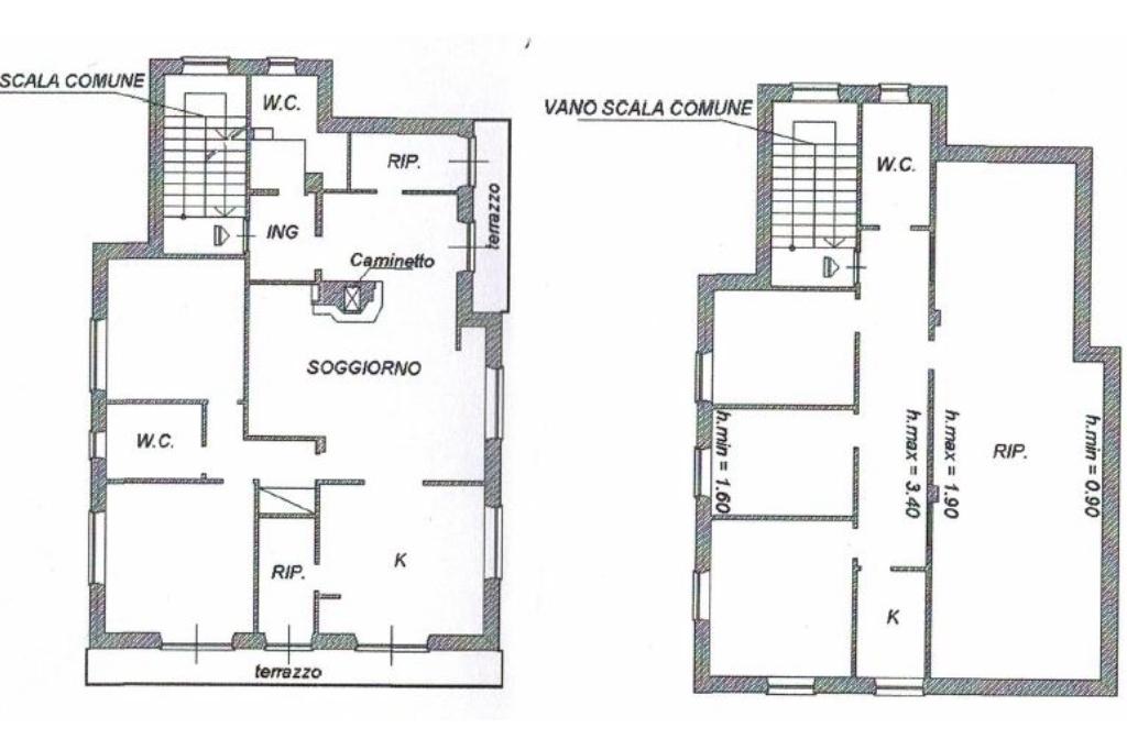
Al piano superiore troviamo la seconda unità abitativa; un corridoio conduce ai vari ambienti semi-mansardati, la zona giorno è composta dalla cucina e dall’adiacente soggiorno mentre la zona notte è composta da due camere matrimoniali. Vicino ad una camera è posizionato il bagno dotato di finestra e box doccia. Allo stesso piano un ulteriore porta dà accesso allo spazioso solaio, esteso per tutta la metratura della casa e sfruttabile come ulteriore locale deposito.

Entrambe le unità sono dotate di calderina a metano, gli infissi (al piano primo) sono in doppio vetro e l’impianto elettrico è sfilabile.

Completano la proprietà il locale caldaia ed il terreno di circa 500 mq posto sul retro con disposizione a fasce, la prima sfruttabile come classico giardino.

Mostra tutto

Nelle vicinanze

Trasporto pubblico Trasporto pubblico
Ronco Scrivia
Ronco Scrivia
140 m
Trasporto pubblico
230 m
Ricariche auto elettriche Ricariche auto elettriche
Campo Sportivo Ronchese | EnelX
900 m
Ronco Scrivia Isolabuona | EnelX
2,1 Km
Ronco Scrivia Mazzini | EnelX
2,7 Km
Scuole Scuole
Scuole
450 m
Farmacia Farmacia
Farmacia
400 m
Supermercati Supermercati
Food Basics
270 m
Carrefour Express
670 m
Negozi Negozi
Panificio Parodi
260 m
Negozi
760 m
Bar Bar
Bar della Stazione
290 m
Bar
560 m
Ristoranti Ristoranti
Barbossa
390 m
Ristoranti
650 m
Mostra tutto

Caratteristiche

Rif.:
61173941
Piano:
2 di 3 (Piano su più livelli)
Box:
2
Posti auto:
2
Balconi:
2
Terrazzi:
1
Mostra tutto
Prezzo Prezzo
€ 240.000
Rata mutuo Rata mutuo
€ 1.140 / mese
Spese annue Spese annue
€ 0
Proponi il tuo prezzoProponi il tuo prezzo

Classe Energetica

Questo immobile è esente da classe energetica
Anno di costruzione:
1970
Riscaldamento:
Autonomo
Tipo impianto:
A radiatori
Tipo alimentazione:
Metano

Ti interessa visionare l'immobile?

Fissa un appuntamento  Fissa un appuntamento

Richiedi informazioni

Clicca su Leggi per aprire l'informativa
* Questi campi sono obbligatori

Calcola il tuo mutuo

Semplice e senza impegno
Anticipo

( % )
Mutuo

( % )

pochi semplici passi

inserisci i tuoi dati
Questionario completato
Grazie per aver richiesto un appuntamento senza impegno con un nostro Consulente del Credito e Assicurativo.

Hai inserito correttamente tutti i dati necessari e a breve riceverai una e-mail con un link da convalidare per inviare i tuoi dati.
Affiliato
Studio Busalla Sas
Via Vittorio Veneto, 75 16012 Busalla (GE)

Il nostro staff


  • Davide Pazzano
    Affiliato
Via Vittorio Veneto, 75 16012 Busalla (GE)
Zona: Busalla - Savignone - Crocefieschi - Ronco Scrivia
Mostra su mappa
Orari: 08:30 -12:30/15:00-20:00
Affiliato
Studio Busalla Sas
Via Vittorio Veneto, 75 16012 Busalla (GE)

2026 Tecnocasa Franchising S.p.A. - P. IVA 08365160152 - Via Monte Bianco 60/A 20089 Rozzano (MI). Ogni agenzia ha un proprio titolare ed è autonoma. Privacy policy | Policy utilizzo | Cookie policy